CLERE STREET


LONDON, UNITED KINGDOM
2022 - 2023

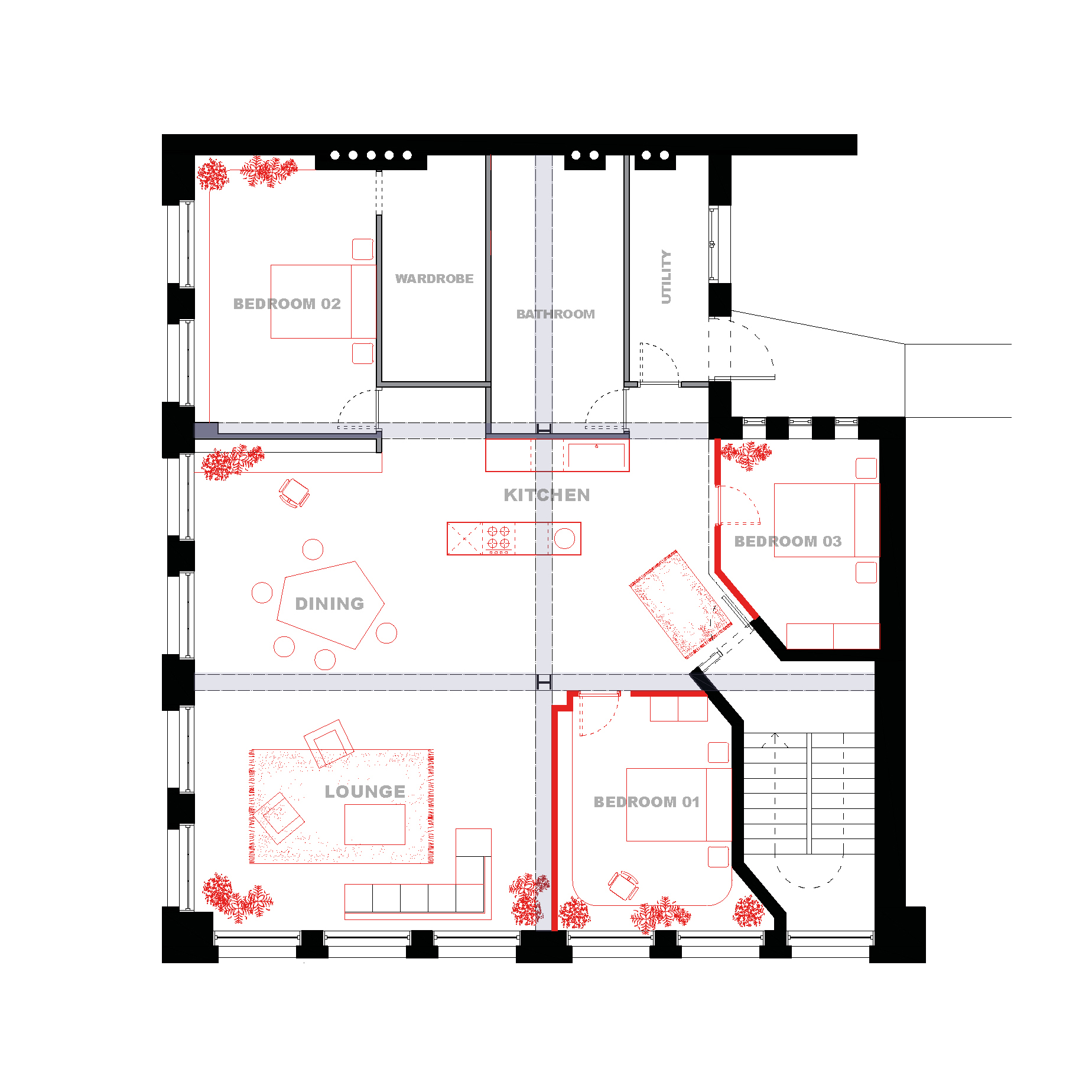
The objective was to transform a one-bedroom loft in the vibrant Shoreditch district of London by introducing two additional bedrooms and relocating the kitchen.
The pre-existing structure of the building featured a robust steel framework that intricately influenced the original layout.
Mindful of preserving this structural integrity, the design incorporated meticulous detailing at the intersections of walls, columns, and beams to accentuate and respect their presence.

In selecting finishes for the flat, the focus was on durability to withstand the dynamic lifestyle of three young men in their mid-twenties. Prioritizing toughness, ease of cleaning, and sound absorption, we curated a selection that met these criteria. Even with the addition of two new rooms, a key requirement was to ensure the space could accommodate gatherings of up to 50 people. To achieve this, we opted for a straightforward yet sophisticated palette, featuring cork for wall finishes, stainless steel for the kitchen, and a dark paint finish for beams and other intricate details.












8-) ©2025